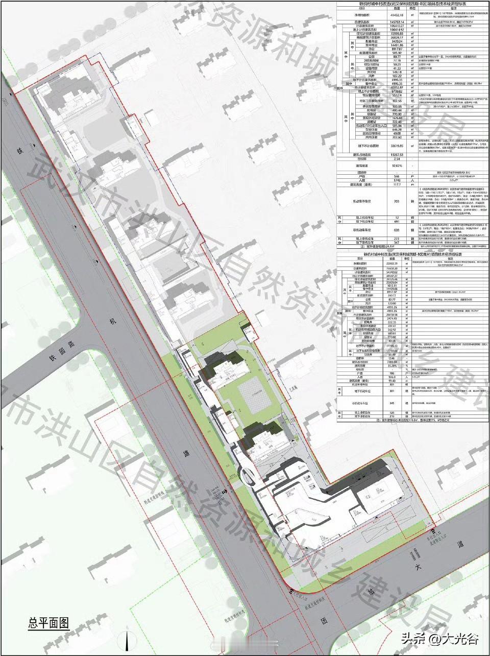
洪山区保利城四期-B区南片规划出炉! 10月9日,湖北保利普提金置业有限公司申报的铁机村城中村改造(武汉保利城四期-B区南片)规划方案批前公示,项目位于洪山区铁机村,铁机路与团结大道交汇处。 该片区规划净用地面积22063.39平方米,总建筑面积74602.2平方米,容积率2.46,规划住宅24125.46平方米,机动车位301辆。



洪山区保利城四期-B区南片规划出炉! 10月9日,湖北保利普提金置业有限公司申报的铁机村城中村改造(武汉保利城四期-B区南片)规划方案批前公示,项目位于洪山区铁机村,铁机路与团结大道交汇处。 该片区规划净用地面积22063.39平方米,总建筑面积74602.2平方米,容积率2.46,规划住宅24125.46平方米,机动车位301辆。



作者最新文章
热门分类
社会TOP
社会最新文章