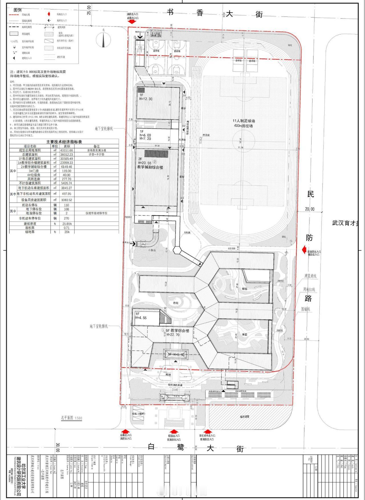
问津高级中学规划方案出炉! 10月11日,新洲区自然资源和城乡建设局就问津高级中学建设工程项目规划设计方案批前公示。项目拟建设1栋5F教学综合楼、1栋1-2F教学辅助综合楼及风雨连廊、1栋1F垃圾房、1栋1F门房及田径场。总建筑面积36012.23平方米,其中计容建筑面积30585.49平方米。 问津高级中学将位于新洲区,东临民防路,与著名的武汉育才美术高中毗邻,优越的地理位置为其未来的发展奠定了良好的基础。



问津高级中学规划方案出炉! 10月11日,新洲区自然资源和城乡建设局就问津高级中学建设工程项目规划设计方案批前公示。项目拟建设1栋5F教学综合楼、1栋1-2F教学辅助综合楼及风雨连廊、1栋1F垃圾房、1栋1F门房及田径场。总建筑面积36012.23平方米,其中计容建筑面积30585.49平方米。 问津高级中学将位于新洲区,东临民防路,与著名的武汉育才美术高中毗邻,优越的地理位置为其未来的发展奠定了良好的基础。



作者最新文章
热门分类
社会TOP
社会最新文章