老涛资讯网
我只多花2W+把精装房变成自己想要的样子
许小姐想不上班
2025-03-16 16:45:21
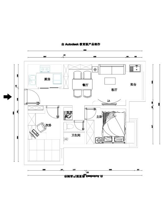
🏠我家原本是开发商交付的精装房,建筑面积:62,套内大概45平左右。当初交房的时候真心不喜欢,通过自己的想法装修,慢慢成为自己喜欢的样子,房子很小,也是我用心装修出来的家。 1、最大的改动也是最不后悔的就是敲掉原来的地砖和地板,换成自己喜欢的木纹砖。花费:1万2千+ 2、精装房入户柜门和厨房柜门全部换了。花费:1千+ 3、卧室门和入户门喷漆改色,厨房推拉门拆除。花费:2千+。 4、全屋通刷乳胶漆,花费3千+ 这些加起来差不多2万多点,2万多也花得值。 最后附上户型图[派对R]
0
阅读:0
评论列表
蛾庡嘫叆沵
2
2025-03-18 10:39
床的实用性质量咋样?这是多大床
见一对爱一对
1
2025-03-18 10:49
求推荐上下床
许小姐想不上班
感谢大家的关注
作者最新文章
1
已入住2年的小家,穷装就复制我家吧~
2
初中娃妈狂喜!这吹风机拯救娃熬夜作业时光
3
一不小心装修出人见人夸的小家,舒适度拉满
4
满墙书柜+舒适学习椅=理想学习区(附尺寸图)
5
你们要的满墙书柜尺寸我整理出来啦
6
替你们试过了8W只能穷装成这样~我尽力了
7
💰300+网购的客厅双层纱,安全下车
8
好赞~这窗帘300也太值了~温馨又有氛围感
9
谁说小户型不配有这样的窗帘,真的好美呀!
10
我只多花2W+把精装房变成自己想要的样子
热门分类
推荐
热榜
军事
NBA
体育
社会
明星八卦
娱乐
财经
科技
汽车
历史
国际
游戏
动漫
公益
搞笑
商业
互联网
数码
国际足球
房产
家居
时尚
科学探索
职场
育儿
股票
教育
影视
情感
热点
中国军情
武器
中国南海
中国足球
亚洲杯
科比
综合体育
CBA
投资
大咖秀
外汇
创业
风口
SUV
豪车
概念车
优惠
新能源
美国
欧洲
朝日韩
俄罗斯
孕期
街拍
婚姻
正能量
家居
TOP
1
有了有了造型室
2
这绝对是自建房的天花板了吧!!
3
TheCapiton🐆ootd风格大赏新城事
4
终于知道铺这种地砖的意义了。
5
有山有水,这算不算风水宝地?
6
珠宝柜姐23
7
这家业主,是什么样的人?
8
上得厅堂,下得厨房。
9
现在的业主真把房子当自己家了。
10
这应该是农村自建房的天花板了吧
家居
最新文章
1
好样的,206㎡不绕弯子,从某种意义上,可以说它是,真实生活的回归,相当于大平
2
呆呆爆火后首次直播,我注意到两个细节,第一个是她直播后面的墙壁非常新,包
3
南方人第一次见北方人烤阳台。。。我直接笑到拍大腿!这哪是吃烧烤?明明
4
“忘记贴腰线了,这下麻烦大了”,这是网友针对视频情景给出的直白描述。然而,在专业
5
楼梯间随拍|纯欲感直接拉满🥹
6
重庆这些房子修的真有特色
7
农村有不少这样的自建房,舍得建楼却不舍得装修。因为建楼是面子,装修是里子。很
8
高清壁纸|纯欲天花板爱不释手值得长期不换的壁纸
9
讲个颠覆你几十年认知的事儿。你家卫生间那个专门扔厕纸的垃圾桶,可以扔了。别
10
现在的业主真把房子当自己家了。
蛾庡嘫叆沵
床的实用性质量咋样?这是多大床
见一对爱一对
求推荐上下床